Zamknij

Dodaj komentarz

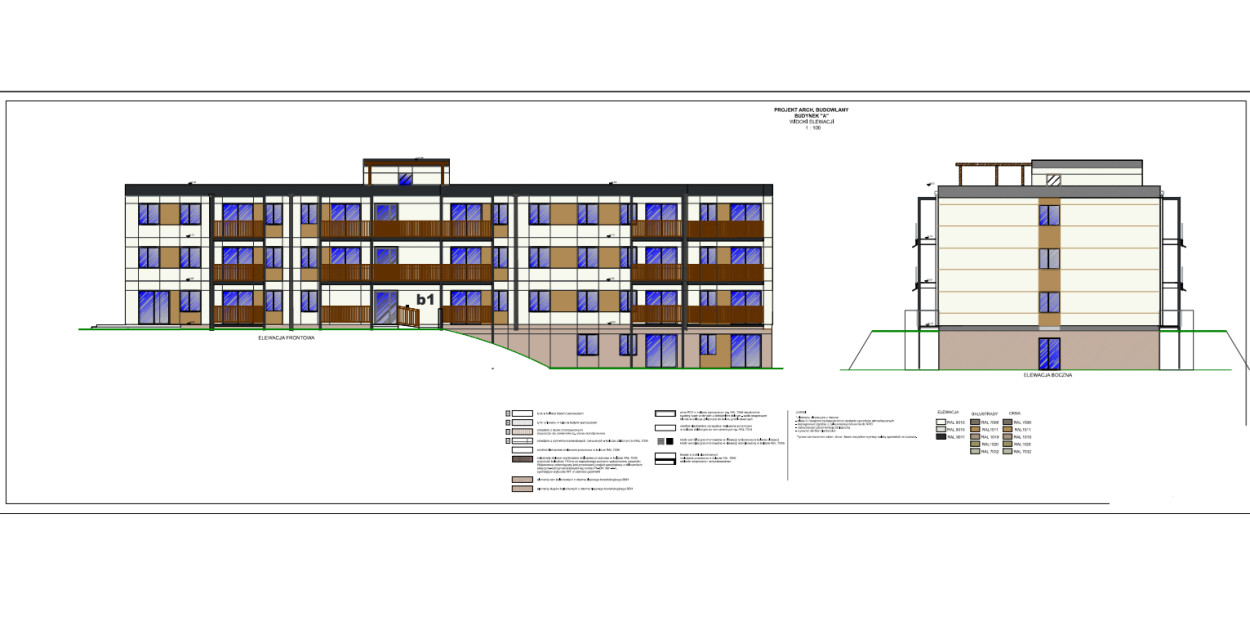
Nowe mieszkania w Radzyniu Chełmińskim. Przy ulicy Fijewo powstanie 25 lokali

. 08:09, 19.08.2025 Aktualizacja: 21:02, 26.10.2025
Skomentuj

Radzyń Chełmiński dołącza do miast, które aktywnie inwestują w nowoczesne i dostępne cenowo budownictwo. W ramach Społecznej Inicjatywy Mieszkaniowej KZN Pojezierze przy ulicy Fijewo powstanie nowoczesny budynek wielorodzinny, w którym znajdzie się 25 mieszkań na wynajem z opcją dojścia do własności.

Inwestycja na ostatniej prostej

Projekt jest obecnie na etapie finalizacji dokumentacji i przygotowań do rozpoczęcia budowy. Złożono już wniosek o pozwolenie na budowę, co jest jednym z ostatnich kroków przed wejściem na plac budowy. Do tej pory wykonano szereg kluczowych prac przygotowawczych, w tym analizę chłonności terenu, mapy do celów projektowych oraz niezbędne badania geotechniczne gruntu.

Gotowy jest już także projekt architektoniczny wraz z planem zagospodarowania działki. W ramach przygotowań odbyły się również konsultacje z udziałem Burmistrza Radzynia Chełmińskiego, Krzysztofa Chodubskiego, oraz Prezesa SIM KZN Pojezierze, Rafała Ryszczuka, i projektantów, aby dopracować wszystkie szczegóły inwestycji.

Szansa dla mieszkańców, korzyść dla gminy

Inwestycja ma na celu zaspokojenie lokalnych potrzeb mieszkaniowych, oferując lokale na preferencyjnych warunkach. Jest to szansa dla młodych ludzi i rodzin, aby związać swoją przyszłość z gminą, a także dla seniorów, którzy zyskają komfortowe warunki do życia w nowym budownictwie.

„Cieszymy się, że mieszkańcy Radzynia Chełmińskiego zyskają możliwość wynajęcia nowoczesnych mieszkań na preferencyjnych warunkach. Formuła SIM pozwala stworzyć lokale, które w przyszłości mogą stać się własnością najemców, bez obciążania budżetu gminy” – podkreśla Rafał Ryszczuk, Prezes SIM KZN Pojezierze.

Model Społecznej Inicjatywy Mieszkaniowej umożliwia realizację tego typu projektów przy wsparciu rządowym, dzięki czemu samorządy mogą rozwijać infrastrukturę mieszkaniową bez ponoszenia wysokich kosztów.

Część większego programu

Budowa przy ul. Fijewo to część szerszego programu realizowanego przez SIM Pojezierze. Inicjatywa ta, we współpracy z Krajowym Zasobem Nieruchomości, prowadzi podobne inwestycje mieszkaniowe łącznie w 10 gminach na terenie województw kujawsko-pomorskiego i warmińsko-mazurskiego.

(.)

Co sądzisz na ten temat?

podoba mi się 0
nie podoba mi się 0
śmieszne 0
szokujące 0
przykre 0
wkurzające 0
Nie przegap żadnego newsa, zaobserwuj nas na
GOOGLE NEWS
facebookFacebook
twitter
wykopWykop
komentarzeKomentarze

komentarze (0)

Brak komentarza, Twój może być pierwszy.

Dodaj komentarz

OSTATNIE KOMENTARZE

Rolnicy wyjechali na ulice Grudziądza. Raport z protest

Umowa Mercosur omawiana jest już ok ...30 lat. Jak PIS przyjął w Zielonym Ładzie miedzy innymi wstępne decyzje co do Mercosur (Kamienie Milowe) to nikt nie protestował. Teraz rolnicy protestują przeciwko Koalicji, choć wiedzą, że obecny rząd jest przeciwko tej umowie. Jakaś logika? Górnicy z prywatnej kopalni, powtarzam -prywatnej protestują przeciwko Koalicji bo nie otrzymali tak jak państwowi po 170 tyś odprawy i 5 lat urlopu z 80% obecnej wypłaty. Winią rząd a nie właściciela. Jakaś logika? Mieszkaniec pałacu krzyczy w Poznaniu, że naszym zagrożeniem jest zachodnia granica, choć już dawno udowodniono, że zło czai się po przeciwnej stronie kraju, na wschodzie. I to już od kilku lat. Jakaś logika? Pytam- jest w tych zachowaniach jakaś logika poza chęcią rozwalenia tego wszystkiego co osiągnęliśmy?

Jarek

22:35, 2025-12-30

Rząd przyjął projekt ustawy o statusie osoby najbliższe

Kotula wpierw wspomniała że to jest projekt dot. par jednopłciowych a dopiero pózniej hetero, nie jesteśmy Holandią ,Belgią że można wziążć ślub z psem czy kotem....jesteśmy powaznym państwem , myslę że prezydent przyjrzy się dokładnie co spłodziła ta konstelacja tęczowych gwiazd..!!!

taki sobie

20:52, 2025-12-30

Minimalna pensja w górę. Miliony Polaków odczują...

Daj mi jedno słowo a ja już będę obok . Jutro w Toruniu.

Konrad Skolimowski

18:25, 2025-12-30

Szpital Specjalistyczny w Pile rekrutuje. Poszukiwani l

Placówka oferuje zero odpowiedzialności, całkowitą możliwość upodlenia pacjenta i zarobki na poziomie 250-300 tys zł bez dodatków, nadgodzin i dyżurów. Czysty etat. Drugie tyle za dodatki.

Jojo

17:45, 2025-12-30

0%